中华文化博大精深,渊源流长
体现了中国人民生活的各种形态
在文字中
能代表中国建筑的一个字
就是——宫

我们先来看看甲骨文中“宫”字的形态

看,一个坡屋顶房屋出现了,
还带两个窗户。
一个标准的房屋立面图。
把这个字看做一个平面图,
像不像一个院子围合的两间房?
不管是大如故宫、寺庙,还是小如民宅,
中国建筑从来都不是以单体建筑出现的,
这种围合式的“四合院”布局,
是中国建筑区别于西方建筑的一个主要的特点。

这是一个标准的三进四合院布局图。
从大门入户,
穿过屏们先到第一进院,也就是外院。
穿过二门,或者叫垂花门,来到第二进院,
也就是内院。
左右是东西厢房,北面是正房,
正房与后罩房之间是第三进院。
古国古代建筑有一个很重要的特点,
就是群落式的建筑组合,
建筑、院落、建筑、院落交替出现。

一进、两进院落算是比较普通的民居,
大户人家动不动就是三进四进五进,
还带着花园庭院。
纵深发展的进数越多,
主人的身份等级越高。

中国传统四合院,就像一个人,
有头有耳,五脏俱全。
进入这个人体内,就要随着他的气息走动。
正房如头脑,朝向好,住的是房主人;
抄手游廊、东西厢房如两臂,住的是子女;
倒座房如足,住佣人或做为书斋;
中间庭院,使各屋各院气脉相通畅,收神敛气。

三进院落平面图
用一句话形容四合院的生活:
“天棚、鱼缸、石榴树,
老爷、肥狗、胖丫头。”
用建筑布局规划住宅功能与舒适性,
使建筑参与到家庭礼制中,
像一只无形的手,
聚拢、拿捏、分散、阻隔,
使整个住宅功能合理,各司其职,长幼有序。

不管是北京的三合院、四合院,
还是云南的“一颗印”,
或是客家人的围龙屋、土楼,
在中国传统的人居理念中,
围合式建筑布局都是理想的居住形态,
简洁而又安全。

一个民居的布局就有这么多讲究,
那么一个宫殿建筑呢?
我们再来看看保存完整的古代宫殿——
故宫的平面布局。

故宫的平面布局大和直观的特点
就是中轴对称和群落式建筑组合。
重要的建筑都在中轴线上,
一个个的建筑群落组成整体建筑组合。
午门、太和门、前三殿、后三殿等等,
而中轴线左右的武英殿、文华殿以及东西六宫,
也都是对称坐落的布局。

在纵深上,“前朝后寝”是另一个特点,
故宫南半部分集中了几乎所有重要的办公场所,
文华武英,太和、中和、保和三大殿
都是在“前朝”的部分。
而“后寝”的部分
当然就是供皇帝居住的后三殿、东西六殿,
还有皇后太后门居住的宁寿宫、慈宁宫等地方。

除了中轴对称、前朝后寝的特点,
紫禁城还修建了内外金水河,
以及神武门北面的万岁山,,
人为制造了一个“背山环水”的环境,
使布局更加舒适合理。

看过了一个宫殿的平面布局,
我们再来看看古代城市是怎么规划的。
说到古代的城市规划,
不得不提一本书——
春秋时期的《周礼·考工记》
这是我国第一个论述城市规划理念
和功能布局的专著。

《周礼·考工记》中的《匠人营国》一章,
对城市规划有了详细的论述:
“匠人营国,方九里,旁三门,
国中九经九纬,经涂九轨,左祖右社,
前朝后市,市朝一夫。”

“营国”就是建城,
这段话的意思是:
营建都城,九里见方,每边开三道门,
纵横各九条道路,南北道路宽九条车轨,
东南为祖庙,西面为社稷坛,
前面是朝廷宫室,后面是市场与居民区。

周王城
《周礼·考工记》中对城市的规划,
重要的一个特点还是“中轴对称”,
皇城是一定要放在中轴线上的了,
但是放在中轴线的前端、中端或后端,
各朝代都有自己的做法。

唐代的长安城,
皇城和宫城都是在都城的后端,
也就是北部。
唐代的宫城,就是太极宫。
在太极宫的北面,
还可以看到后来建的更大的宫城——
大明宫。

从春秋时期开始,
中国古代城市逐渐形成一种特殊的规划制度——
里坊制
就是将城市中的居住区按照棋盘格的形式,
划分为一个个独立的方格,
每一个方格叫做一个“里”或一个“坊”,
每一个里坊还会有独立的名称。
唐代长安城将买卖东西的西市和东市,
放在了皇城的南面,
和居民区离得比较近,
这也是“东西”这个词的来历。

唐长安城的规划理念在当时是十分先进的,
同时代的日本平城京(也就是京都),
就是完全模仿了长安城的规划设计。

到了宋朝,经济繁荣,商品经济空前发展,
初期还遵循里坊制度,
到了北宋中期已经被打破,
沿街的围墙不见了,满街都是商铺,
宋朝以后,就再也有出现过里坊制。

宋代开始由封闭型转向开放型城市
从平面图中可以看到,
北宋的东京城,
已经很接近现代城市的规划布局了。
北宋张择端的《清明上河图》,
就再现了当时繁华的街室店铺,
没有了里坊的围墙,
人们可以在街边经营店铺,做各种买卖。

到了元朝,
对新建城市的布局规划更加成熟,
建设城市首先就是要进行严密的计划,
并出现了成为明清两朝都城蓝本的超级都城——
元大都

元大都还原了中国传统的都城规划思想,
外城每面三门,左祖右社,钟鼓楼居中,
外城、皇城、宫城层层环套。
并初步形成了那条,
充满魅力的中轴线。

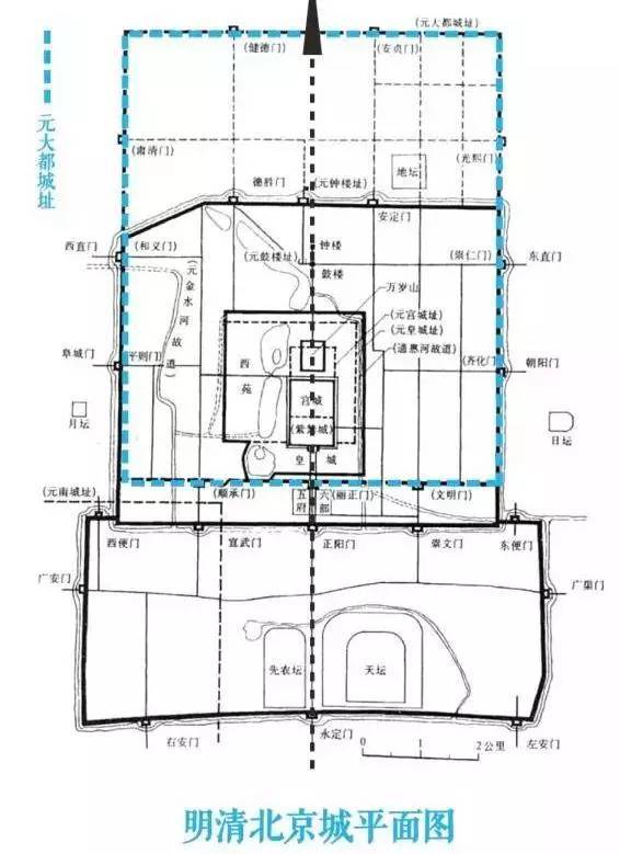
明清时期的北京城,
就是在元大都的基础上,向南扩张而来。
元明清三朝都城,
都是在《周礼·考工记》的都城规划基础上,
做出了自己的注解。
最新产品
同类文章排行
- 检测报告上CMA、ILAC-MRA、CNAS、CAL四个标识的区别!
- 分不清转包、分包、内包、挂靠之间的区别?看这里!
- GB50210-2018《建筑装饰装修工程质量验收标准》已实施
- 房屋建筑学基础知识汇总
- 典型案例!国内外桥梁坍塌事故,太吓人了......
最新资讯文章
您的浏览历史








